返回首页 | 加入收藏 | 联系我们
 
  闸阀
  截止阀
  球阀
  水力控制阀
  蝶阀
  止回阀
  旋塞阀
  调节阀
  疏水阀
  过滤器
名称:Z40H、Z40Y、Z40W 型 PN100、PN160 铸钢闸阀

产品介绍:

产品说明

Z40H、Z40Y、Z40W 型 PN100、PN160 铸钢闸阀:手动、法兰连接、明杆楔式弹性闸板,阀座密封面材料为不锈钢、硬质合金,工作压力 10.0~16.0MPa,阀体材料为碳素钢、铬钼钢、不锈钢的闸阀。

产品性能参数

Z40H、Z40Y、Z40W 型 PN100、PN160 铸钢闸阀主要性能参数
型号 PN 工作压力 / MPa 适用温度 / ℃ 适用介质
Z40H-100 100 10.0 ≤ 425 水、蒸汽、油品
Z40H-160 160 16.0
Z40Y-100 100 10.0
Z40Y-160 160 16.0
Z40Y-100I 100 10.0 ≤ 550 蒸汽、油品
Z40Y-160I 160 16.0
Z40W-100P 100 10.0 ≤ 200 醋酸类
Z40W-160P 160 16.0

产品零部件材料

Z40H、Z40Y、Z40W 型 PN100、PN160 铸钢闸阀零部件材料
型号 材料
阀体、阀盖、闸板 阀杆 密封面 填料
Z40H-100 碳素钢 铬不锈钢 堆焊铁基合金 石棉石墨或柔性石墨
Z40H-160
Z40Y-100 堆焊硬质合金
Z40Y-160
Z40Y-100I 铬钼钢 铬钼钢 堆焊硬质合金 石棉石墨或柔性石墨
Z40Y-160I
Z40W-100P 铬镍钼钛不锈钢 铬镍钼钛不锈钢 堆焊硬质合金 聚四氟乙烯
Z40W-160P

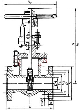
产品外形及结构尺寸 (PN100)

Z40H、Z40Y、Z40W 型 (PN100) 铸钢闸阀外形及结构尺寸
DN L D D1 D2 D8 b z×ød H H1 D0 重量 / kg
25 210 135 100 78 501 24 4×ø18 310 13
32 230 150 110 82 65 24 4×ø23 320 20
40 240 165 125 95 75 26 4×ø23 360 60
50 250 195 145 112 85 28 4×ø25 490 558 360 50
65 280 220 170 138 110 32 8×ø25 540 622 400 70
80 310 230 180 148 115 34 8×ø25 572 671 400 100
100 350 265 210 172 145 38 8×ø30 573 671 400 110
125 400 310 250 210 175 42 8×ø34 744 892 560 180
150 450 350 290 250 205 46 12×ø34 800 972 560 250
200 550 430 360 312 265 54 12×ø41 800 972 560 360
250 650 500 430 382 320 60 12×ø41 1050 1305
300 750 585 500 442 375 70 16×ø48 1200 1505

产品外形及结构尺寸 (PN160)

Z40H、Z40Y、Z40W 型 (PN160) 铸钢闸阀外形及结构尺寸
DN L D D1 D2 D8 b z×ød H H1 H0 重量 / kg
15 170 110 75 52 35 24 4×ø18 230 250 200 7
20 190 130 90 62 45 26 4×ø23 260 288 200 10
25 210 140 100 72 50 28 4×ø23 280 310 280 14
32 230 165 115 85 65 30 4×ø25 312 350 320 21
40 260 175 125 93 75 32 4×ø27 350 395 320 26
50 300 215 165 132 95 36 8×ø25 512 612 360 73
65 360 245 190 152 110 44 8×ø30 560 677 360 110
80 390 260 205 168 130 46 8×ø30 585 686 400 141
100 450 300 240 200 160 48 8×ø34 631 751 450 185
125 525 355 285 238 190 60 8×ø41 723 868 560 320
150 600 390 318 270 305 66 12×ø41 820 997 640 462
200 750 480 400 245 265 78 12×ø48 990 1224 720 711

产品图片

Z40H、Z40Y、Z40W 型 PN100、PN160 铸钢闸阀图片

产品外形及结构尺寸示意图

Z40H、Z40Y、Z40W 型 PN100、PN160 铸钢闸阀外形及结构尺寸示意图

【我要订购】   【关闭】
电话:0371-66230159
传真:0371-66231001  
E-mail:shhdfm@163.com
营业执照信息公示  版权所有:河南冈野阀门有限公司 备案号:豫ICP备12027349号 技术支持:郑州互易