|
|
 |
 |
| 名称:沟槽式卡箍Y型过滤器 |
|
产品介绍:
沟槽式卡箍Y型过滤器:过滤面积大、流阻系数小、下端部装有自由冲洗装置,冲洗时间快比一般Y型过滤快8-10倍。阀体内外采用无毒性的粉体环氧树脂喷涂,使水质不至于出现缺水及阀体的腐蚀。过滤网采用不锈钢,在使用过程中不会出现滤网结锈而减少过滤面积。本阀具有双向密封功能,安装时不受介质流向的限制,也不受空间位置的影响,可在任何方向安装。
沟槽式卡箍Y型过滤器主要性能参数
| 型号 |
PN |
工作压力 (Mpa) |
适用温度 (℃) |
适用介质 |
| DFSRY-16Q |
16 |
1.6 |
≤ 100 |
蒸汽、水 |
| DFSRY-16C |
| DFSRY-16P |
硝酸类 |
| DFSRY-16QR |
醋酸类 |
沟槽式卡箍Y型过滤器零部件材料
| 型号 |
材料 |
| 阀体、法兰盖 |
过滤网 |
| DFSRY-16Q |
球墨铸铁 |
不锈钢 |
| DFSRY-16C |
碳素钢 |
| DFSRY-16P |
不锈钢 |
| DFSRY-16QR |
不锈钢 |
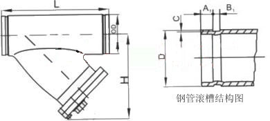
沟槽式卡箍Y型过滤器主要外形及结构尺寸 (mm)
| DN |
DN/in |
OD |
L |
H |
|
DN |
DN/in |
OD |
L |
H |
| 50 |
2 |
60 |
200 |
150 |
150 |
6 |
165 |
460 |
360 |
| 65 |
21/2 |
76 |
240 |
180 |
200 |
8 |
219 |
550 |
440 |
| 80 |
3 |
89 |
270 |
200 |
250 |
10 |
273 |
680 |
530 |
| 100 |
4 |
114 |
340 |
260 |
300 |
12 |
325 |
790 |
580 |
| 125 |
5 |
140 |
400 |
310 |
|
|
|
|
|
沟槽式卡箍Y型过滤器钢管滚槽、开槽基本尺寸及偏差表 (mm)
| 公称通径 |
钢管外径 |
A1 0/-0.5 |
B1 +0.5/0 |
C +0.5/0 |
| 50 |
60 |
14.5 |
9.5 |
2.2 |
| 65 |
76 |
| 80 |
89 |
| 100 |
114 |
16 |
| 125 |
140 |
| 150 |
165 |
| 200 |
219 |
19 |
13 |
2.5 |
| 250 |
273 |
| 300 |
325 |
3.3 |

|
| 【我要订购】 【关闭】 |
|
|
|
|